Puidukatlad /Tahkeküttekatel – ökonoomne, töökindel ja traditsiooniline küte kodudele ja ettevõtetele
Puidukatlad /Tahkeküttekatel – ökonoomne, töökindel ja traditsiooniline küte kodudele ja ettevõtetele
Puiduga kütmine on endiselt üks stabiilsemaid ja majanduslikult põhjendatumaid lahendusi majapidamiste jaoks. Energiaturu hinnakõikumiste ja ebakindluse ajal otsivad paljud majaomanikud ja suuremate kinnisvarade omanikud usaldusväärset süsteemi, mis pakuks suurt küttevõimsust, prognoositavaid kulusid ja pikaajalist töökindlust. Just seetõttu on Puidukatlad /Tahkeküttekatel jätkuvalt üks eelistatumaid küttelahendusi.
Seda tüüpi küttesüsteemi iseloomustab kõrge kasutegur, kui võimsus on õigesti valitud ja paigaldus korrektselt teostatud. Täiendav eelis on küttepuude hea kättesaadavus paljudes piirkondades, mis muudab küttekulude planeerimise lihtsamaks. Hea hoolduse ja õige kasutamise korral võib puidukatel pakkuda stabiilset kütet paljudeks aastateks ilma keeruka automaatika või kallite infrastruktuurilahendusteta.
.png)
Mis on puidukatel
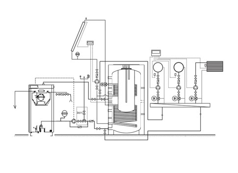
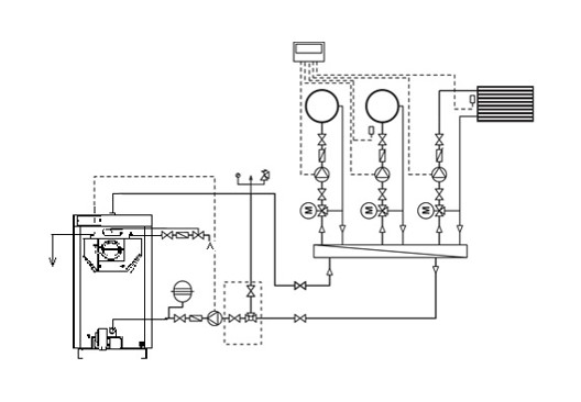
Puidukatel on keskküttesüsteemi kütteseade, mis kasutab tahket kütust (küttepuud) vee soojendamiseks. Soojendatud vesi ringleb torustikus radiaatorite või põrandakütte kaudu, tagades hoones ühtlase temperatuuri.
Erinevalt tavalistest ahjudest ja kaminatest on katel mõeldud kogu maja või hoone kütmiseks, mitte ainult ühe ruumi jaoks. See toimib peamise soojusallikana ning seda saab kombineerida akumulatsioonipaagiga, et saavutada suurem efektiivsus ja harvem kütuse lisamine. Sõltuvalt mudelist ja konstruktsioonist võivad katlad pakkuda erinevat kasutegurit ja põlemise juhtimist. Kaasaegsed lahendused on loodud puidu põlemise optimeerimiseks ja soojuskadude vähendamiseks, mistõttu sobivad need nii uutele hoonetele kui ka olemasolevate küttesüsteemide uuendamiseks.

Kuidas puidukatel töötab
Puidukatelde töö põhineb tahke kütuse põletamisel ja tekkiva soojuse ülekandmisel veesärki (soojusvahetisse). Pärast küttepuude süütamist tekib soojus, mida kasutatakse katlas oleva vee soojendamiseks. Tsirkulatsioonipump jaotab kuuma vee küttesüsteemi ning jahtunud vesi naaseb katlasse uuesti soojendamiseks.
Kaasaegsed mudelid võib jagada mitmesse põhitüüpi:
- Standardkatlad loomuliku tõmbega
- Ventilaatoriga katlad sundtõmbega
- Pürolüüsikatlad (gaasistavad katlad) kõrgema kasuteguriga
Pürolüüsikatlad tagavad puidugaaside täielikuma põlemise, mis vähendab kütusekulu ja heitkoguseid.


Puidukatelde sobivad kasutusvaldkonnad
Puidukatlad sobivad hoonetele, kus on veepõhine küttesüsteem. Kõige sagedamini kasutatakse neid:
- Eramutes
- Suvilates ja maapiirkondade kinnistutes
- Väikestes kortermajades
- Töökodades ja ladudes
- Tööstushallides
- Avalikes hoonetes piirkondades, kus puudub gaasivõrk
Need on eriti tõhusad piirkondades, kus küttepuud on kergesti kättesaadavad ja taskukohased.
Kuidas valida õige võimsus
Õige võimsuse valimine on üks olulisemaid tegureid katla ostmisel. Liiga väike võimsus ei taga piisavat mugavust, samas kui liiga suur võimsus põhjustab ebaefektiivset tööd ja liigset kütusekulu.
Vajaliku võimsuse määramisel arvestatakse järgmiste teguritega:
- Kogu köetav pindala
- Lae kõrgus
- Soojusisolatsioon
- Akende ja uste tüüp
- Kliimavöönd
Üldise juhisena võib öelda, et 1 kW võimsust suudab kütta umbes 10 m² hästi isoleeritud pinda standardse laekõrguse korral. Näiteks 150 m² suuruse maja jaoks soovitatakse tavaliselt katelt võimsusega 15 kuni 20 kW.
Puidukatelde peamised eelised
Puidukatlad on eelistatud mitmete oluliste eeliste tõttu. Need pakuvad ökonoomset kütmist ja pikka kasutusiga, eriti kui need on valmistatud kvaliteetsest terasest.
Peamised eelised on:
- Madal kütusehind
- Suur küttevõimsus
- Sobivad suurte pindade kütmiseks
- Suhteline sõltumatus energiatarnijatest
- Madalam alginvesteering võrreldes automatiseeritud süsteemidega nagu Pelletikatlad või terviklikud Pelletikatlad (komplektid)
Puudused, mida arvestada
Hoolimata eelistest vajavad puidukatlad kasutaja suuremat sekkumist. Need ei ole täielikult automatiseeritud ja vajavad regulaarset hooldust.
Peamised puudused on:
- Kütuse käsitsi lisamine
- Küttepuude hoiustamise vajadus
- Tuhka tuleb perioodiliselt puhastada
- Mugavuse tase on madalam võrreldes pelletisüsteemidega, näiteks Pelletikaminad veesärgiga
Erinevus puidukatelde ja pelletikatelde vahel
Pelletikatlad on kaasaegne alternatiiv traditsioonilistele Puidukatlad /Tahkeküttekatel süsteemidele. Peamine erinevus seisneb automatiseerituse tasemes ja kütuse etteande meetodis.
Puidukatel täidetakse käsitsi ning see vajab regulaarset jälgimist. Algne investeering on tavaliselt väiksem ning kütus on sageli odavam ja laialdasemalt kättesaadav.
Pelletikatel töötab automaatse kütuse etteandega, elektroonilise juhtimise ja programmeeritavate töörežiimidega. See tagab suurema mugavuse ja täpsema temperatuuri reguleerimise, kuid esialgne investeering on kõrgem.
Valik nende kahe variandi vahel sõltub eelarvest, soovitud automatiseerituse tasemest ning kütuse kättesaadavusest konkreetses piirkonnas.
Erinevus puidukatla ja pelletikamina veesärgiga vahel
Pelletikaminad veesärgiga saab samuti ühendada küttesüsteemiga, kuid nende võimsus on tavaliselt väiksem ning need ühendavad küttefunktsiooni dekoratiivse elemendiga.
Puidukatlad /Tahkeküttekatel on mõeldud eelkõige kogu hoone pidevaks ja tõhusaks kütmiseks, pakkudes suuremat võimsust ja paremat efektiivsust pikaajalise töö korral.
Mida kontrollida enne ostmist
Enne lõpliku otsuse tegemist on oluline pöörata tähelepanu tehnilistele näitajatele ja seadme ehituskvaliteedile.
Peamised parameetrid, mida tuleks arvesse võtta, on järgmised:
- Nimivõimsus (kW)
- Kasutegur (soojuslik efektiivsus)
- Teraspleki paksus
- Põlemiskambri tüüp
- Ventilaatori olemasolu
- Ühilduvus akumulatsioonipaagiga
- Garantii tingimused ja hooldustugi
Milline küttepuu on kõige sobivam
Puidukatla efektiivsus ei sõltu ainult mudelist, vaid ka kasutatava kütuse kvaliteedist. Parimad tulemused saavutatakse kuiva ja kõva puiduga, näiteks:
- Tamm
- Pöök
- Sarapuu (sarvpuu / hornbeam)
Küttepuude niiskusesisaldus peaks olema alla 20%, sest märg puit vähendab kasutegurit ja suurendab tahma kogunemist.

Korduma kippuvad küsimused (KKK)
Kui tihti tuleb puidukatelt laadida?
Tavaliselt tuleb kütust lisada iga 3 kuni 6 tunni järel, sõltuvalt katla võimsusest, välistemperatuurist ja hoone soojustusest.
Kas puidukatel saab töötada ilma elektrita?
Mõned loomuliku tsirkulatsiooniga mudelid võivad töötada ilma elektrita, kuid enamik süsteeme kasutab tsirkulatsioonipumpa ja vajab elektrivarustust.
Kas on vaja spetsiaalset korstent?
Jah, õigesti dimensioneeritud korsten on hea tõmbe ja süsteemi ohutu töö tagamiseks hädavajalik.
Milline on katla eluiga?
Õige hoolduse korral võib katel töötada 10 kuni 20 aastat.
Kui palju küttepuid kulub ühe küttehooaja jooksul?
Keskmiselt vajab 120–150 m² suurune maja umbes 8 kuni 15 kuupmeetrit küttepuid, sõltuvalt soojustuse kvaliteedist ja kliimatingimustest.
Puidukatlad /Tahkeküttekatel on jätkuvalt praktiline ja ökonoomne küttelahendus, eriti piirkondades, kus puudub gaasi infrastruktuur. Need pakuvad suurt küttevõimsust ja suhteliselt madalaid kasutuskulusid, kuid nõuavad kasutajalt rohkem tähelepanu ja hooldust.
Õige valik sõltub kinnisvara suurusest, olemasolevast eelarvest ja soovitud mugavustasemest. Kui puidukatel on õigesti valitud ja professionaalselt paigaldatud, võib see pakkuda usaldusväärset kütet paljudeks aastateks.
Vaata ka:



